
Бельгийский эко дом рядом с Владивостоком 12 480 000 руб
с. Ясное, Артёмовский городской округ
123,9 кв. м. S помещений
149 кв.м. общая S здания
Участок 30 соток
3 спальни+антресоль спальня
1 Этаж
Готовность под отделку
Галерея
- Гостиная Дизайн 1
- Гостиная сейчас
- Гостиная-Столовая Дизайн 1
- Гостиная -Столовая
- Кухня-Столовая Дизайн 1
- Кухня-Столовая сейчас
- Гостиная Дизайн 2
- Гостиная сейчас
- Кухня-Гостиная Дизайн 2
- Кухня-Гостиная сейчас
- Фасад Дизайн 1
- Фасад сейчас
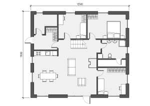
План дома

Описание
Единственный в Приморском крае на продаже настоящий энергоэффективный экодом построенный по технологии продемонстрированной на международной экологической выставке проходившей в Бельгии в 2017 году(подробнее читайте ниже).
Идеально подойдёт женщинам с развитой эмпатией, чувствительных и способных видеть не только глазами. Дом соткан из живых материалов и это невозможно не почувствовать. Всегда свежий воздух, много света и свободного пространства. Одни только стены чего стоят, массивные 65 см толщиной с природными антисептическими свойствами.
Это один из двух подобных экодомов в Приморском крае. Соответствует высочайшему классу энергоэффективности А+. В первом уже живёт и не нарадуется семья, а наш расположен в 15км от г.Артёма, в 40 км от Владивостока и он ждёт своих хозяев.
Построен в духе современного минимализма полностью из натуральных материалов. В простых формах скрыты практичность в пользовании и удобство в обслуживании.
Взвешенная планировка исходит из базовых потребностей человека: просторные общие пространства и компактные приватные зоны (архитектурная идея заимствована у Владимира Чернушевича и его концепции «Дом на печи»).
Все это сохранит актуальность дома и его ликвидность многие десятилетия. Тот случай, когда вложенные ценности вне времени и много выше стоимости. Ведь дом строили истинные фанаты своего дела ПК «Живой домъ». Подробно об истории строительства (включая фото и видео), а она не менее интересна, чем сам дом, можно прочитать на сайте компании.
Дом прекрасно подойдёт, если вы большая семья, любите принимать гостей, много летаете самолётом (аэропорт рядом), работаете на удалёнке или вошли в бальзаковский возраст и любите жить подальше от городской суеты. Или просто ценитель всего натурального и настоящего.
В доме 3 спальни площадью 10, 11 и 13 м2, а также антресоль площадью 12 м2, которая, по сути, гостевая спальня и которую безумно любят дети. Все спальни на одном этаже, что очень удобно. Кто жил в двухэтажном доме (или трёх — мы вам искренне сочувствуем), тот оценит.
Большой зал, совмещенный с обеденной зоной и кухней общей площадью почти 50 м2 настоящее украшение этого дома. С высоким панорамным остеклением в 3 м, потолками под 4 м (не опечатка), открытыми деревянными балками и печью-камином создается ощущение гостиной в элитном доме шале. А выход в центре витража прямо на террасу расширяет возможности качественного отдыха на свежем воздухе и стирает границы дома.
Санузел 7м2, прихожая с проходом в котельную/кладовку, дополнительное тех помещение (бойлерная) и несколько просторных встроенных ниш антресолей для систем хранения позволят разместить все бытовые принадлежности, сезонные вещи и все, что не должно занимать жилое пространство.
Зимние вечера в семейном кругу на диване под танцующие языки пламени, любимый горячий напиток на свежем воздухе по утрам в лучах согревающего солнца, благоухание цветущего сада — всё это не в красивых рекламных роликах, а реальный повседневный сценарий вашей жизни.
Участок огорожен забором в 2,5 м, въезд через откатные ворота. Зона проезда, парковка и площадка под баню отсыпаны скальником. На участке заложен большой и на редкость разнообразный сад, который уже начал плодоносить. Разных сортов жимолость, смородина, крыжовник, вишня, яблони, груши, абрикосы, персики, сливы. Саженцы приобретали у ведущих садоводов приморья.
Дом продается в комплектации «Теплый контур» под отделку. Есть возможность сделать дизайн под себя. Дизайнеры, строители и сметы на оставшиеся работы можем предоставить, если потребуется. Ориентировочные сроки оставшихся работ 4 месяца (стандартные работы без эксклюзива).
с. Ясное очень маленький населенный пункт окружен полями и лесами с двумя продуктовыми магазинами. Ближайший супермаркет, банки и вся городская инфраструктура в 10-15 минутах езды на автомобиле. 10-15 минут до аэропорта Владивосток и ж\д станции. До ближайшего морского пляжа 30 минут. До кампуса ДВФУ на о.Русский 60 минут.
Центральная дорога из города асфальтированная, а улицы с домами обычная грунтовка. Дом последний на улице и есть возможность купить соседние участки при необходимости.
Фундамент дома монолитная ж/б плита. Стены из соломенных панелей покрытых с обеих сторон глиняно-известковыми штукатурными смесями толщиной 10 см каждая. Такая стена выдерживает температуру в 1000 градусов по цельсию в течении часа не воспломеняясь, есть подтвержденные испытания. Спресованная солома запечатанная в прочной, толстой штукатурке не горит без доступа кислорода.
Несущая конструкция панелей выполнена из силового деревянного каркаса внутри которого запресована ржаная солома плотностью 90 кг на м2, выращенная и заготовленная специально для этого дома.
Крыша утеплена эковатой до 40см в коньке. Окна от надежной компании «Отверткин» в самой лучшей комплектации с толщиной профиля 82мм.
Для реальных покупателей из других регионов организуем видео просмотр в реальном времени или вышлем качественный видео ролик.
Для риэлторов и посетителей организуем просмотры по субботам в первой половине дня.
С радостью ответим на все вопросы, звоните!
- Участок на карте
- Участок со спутника














